Auto CD.info - Электронные каталоги запчастей для любой техники. Документация по ремонту спецтехники, электросхемы, диагностические программы.       MAX      Whatsapp      Telegramm             E-mail
главная | новости | FAQ | заказать | обратная связь
ВХОД для ЗАРЕГИСТРИРОВАННЫХ ПОЛЬЗОВАТЕЛЕЙ
  логин:    пароль:   

КНИГИ ПО РЕМОНТУ       

 глобальный поиск
 Новый пользователь  Забыли пароль?  Отписаться от рассылки
IN ENGLISH
Все CD
Оформить заказ в магазине запчастей Auto СД
 Каталог марок
 Легковые авто
 Грузовые авто
 Ремонт авто
 Ремонт грузов.
 ОЕМ легковые
 OEM грузовые
 Погрузчики
 Погруз. ремонт
 С/х техника
 Ремонт с/х тех
 Строительная
 Ремонт стр. тех
 Краны
 Краны ремонт
 Моторы
 Ремонт мотор.
 Мото техника
 Ремонт Мото
 Катера, моторы
 Ремонт л.м.
 Диагностика
 VMware сборки
 Европа
 Азия
 Америка
 Япония
 Китай
Прайсы на авто запчасти
Ключи активации
ИСКАТЬ ВЕЗДЕ
 для печати
 Карта сайта
 Авто ссылки

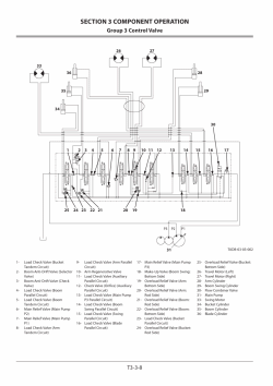
AirMan Mini Excavator AX38u-6a :

PDF книга с описанием ремонта мини экскаватора AIRMAN AX38u-6a (Hokuetsu Ind Co), диагностики, электрическими схемами и кодами ошибок.


 

 
50 USD

ДОБАВИТЬ В КОРЗИНУ
ВЕРНУТЬСЯ

Скриншоты
(Нажмите на маленькую картинку, большая откроется в новом окне)

Нажмите для просмотра, большая картинка откроется в новом окне. Нажмите для просмотра, большая картинка откроется в новом окне. Нажмите для просмотра, большая картинка откроется в новом окне. Нажмите для просмотра, большая картинка откроется в новом окне.

Замеченные конфликты в электронном каталоге AirMan Mini Excavator AX38u-6a:

 Для какого рынка каталог:   Все регионы
 Доступные в программе языки:  Английский
 Поддерживаемые операционные системы:  Vista, Win7 x32, Win7 x64, Win98, Windows 8/10 x64, WinJapan, WinNT, WinXP
 Количество CD/DVD:  1 CD
 Дата обновления данных:  10/2015
 ЦЕНА:  50 USD



Возможно Вас так же заинтересуют эти авто каталоги: ( всего 8 программ )
ПОКАЗАТЬ ВСЕ ПОХОЖИЕ ПРОГРАММЫ

1

AirMan Mini Excavator AX17u-6a
PDF книга с описанием ремонта мини экскаватора AirMan AX17u-6a (Hokuetsu Industrial), диагностики, электрическими схемами и кодами ошибок. Каталог запчастей.
Каталог запчастей и информация по ремонту

2

AirMan Mini Excavator AX55u-6a
PDF книга с описанием ремонта мини экскаватора AirMan AX55u-6a (Hokuetsu Industrial), диагностики, электрическими схемами и кодами ошибок. Электронный каталог запчастей AirMan Mini Excavator AX55u-6a
Каталог запчастей и информация по ремонту

3

AirMan Mini Excavator AX48u-6a
PDF книга с описанием ремонта мини экскаватора AirMan AX48u-6a (Hokuetsu Industrial), диагностики, электрическими схемами и кодами ошибок. Каталог запчастей.
Каталог запчастей и информация по ремонту

4

AirMan Mini Excavator AX26u-6a
PDF книга с описанием ремонта мини экскаватора AirMan AX26u-6a (Hokuetsu Industrial), диагностики, электрическими схемами и кодами ошибок. Каталог запчастей.
Каталог запчастей и информация по ремонту

5

AirMan Mini Excavator AX22u-4
PDF книга с описанием ремонта мини экскаватора AirMan AX22u-4 (Hokuetsu Industrial), диагностики, электрическими схемами и кодами ошибок.
Каталог запчастей и информация по ремонту

Дизайн сайта креатив-бюро "DoNe" Вопросы и пожелания высылайте на адрес: hodgjunior@gmail.com